PROJECTOS
Nos últimos 24 anos de trabalho com a Engenharia e Construção civil, diversos desafios foram aceites e vencidos.
A lembrar que a nossa paixão pela Construção começou na cidade de Santos/SP, (o segundo solo mais instável do planeta).
O nosso maior curso de formação foi a prática das recuperações de estrutura de betão armado, sejam por esforços diferentes ao calculado, sejam por dimensionamento errado das peças estruturais, recalque diferencial, rotação de sapatas isoladas por solo inconstante. Enfim, já enfrentamos toda a gama de patologia estrutural.
Ressalto para a obra de Reaprumo do Edifício Nuncio Malsoni, ao pé do maior jardim de orla de praia do mundo e ao lado da Pinacoteca Benedicto Calixto. (cálculos de reforço Prof Dr C.E.MAFFEI).
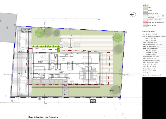
Já em Portugal, temos a construção e venda de um edifício em Cascais com 1400m2 de área construída dividida em 7 fogos
Outros projetos em que estivemos diretamente envolvidos foi na construção de vários prédios de habitação residencial, recuperação de fachadas, troca de revestimento cerâmico. Algo próximo a 40 edifícios, conforme algumas fotos a seguir:
Edifício Getsêmani Garden I
Edifício Residencial De Luxor
Edifício Residencial Shambala
Como empreiteiros, no Penedo/ Murtal, fizemos 80% da construção de uma casa unifamiliar de 250m2 em 10 meses
PRÓXIMOS PROJECTOS
O nosso próximo desafio, será a construção de um condomínio fechado de 8 vivendas, que está em fase de aprovação junto da Camara de Cascais.









